一、用途及特點
YKR系列圓振動篩運動軌跡為圓,可供選煤、選礦、建材、電力及化工等部門作物料分級用。該篩機處理量大,技術參數合理,結構強度高、剛度高,運轉平穩可靠,噪音小,維修方便。
YKR圓振動篩廣泛應用于水電、煤炭、冶金、電力、礦山、建材、化工等領域。振動器采用專用振動軸承,大大提高篩機性能;振動篩振幅和篩面傾角均可調整;激振器采用外置式塊偏心結構,具有激振力大、篩機動負荷小等優點;篩機側板采用整板冷作折彎,無焊接;橫 梁與側板間采用抗扭剪高強螺栓聯接。
二、型號及其含義
.png)
三、型號說明
.png)
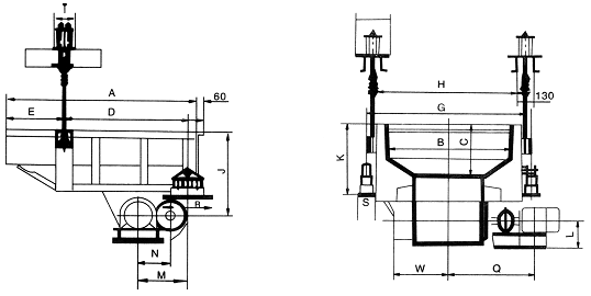
四、技術性能和主要尺寸
型號 | 給料 | 給料 | 電動機 | 主要尺寸mm | |||||||||||||
型號 | 功率kw | 轉速r/min | A | B | C | D | E | F | G | H | I | P | q | d | |||
GZY1533 | 300 | <600 | Y160L-6 | 11 | 970 | 3350 | 1500 | 600 | 513 | 520 | 305 | 2361 | 1685 | 1640 | 2982 | 1179 | 10 |
GZY1539 | 300-1200 | ≤200 | Y160L-6 | 11 | 970 | 3960 | 1500 | 330 | 620 | 617 | 350 | 2820 | 1638 | 2070 | 3520 | 1266 | 10 |
.png)
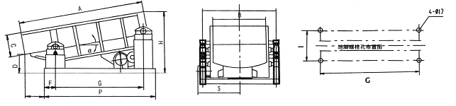
型號 | 處理量t/h | 雙振幅mm | 電動機 | 功率 | 主要尺寸mm | |||||||
槽體傾角 d | ||||||||||||
0° | mm | 10° | A | B | C | D | E | F | ||||
GZY 0510 | 60 |
| 100 | 8 | Y112M
| 2.2 | 1000 | 500 | 200 | 700 | 220 | 120 |
GZY 0815 | 100 | 120 | 160 | 1500 | 800 | 200 | 1140 | 290 | 130 | |||
GZY 1015 | 130 | 180 | 260 | 1500 | 1000 | 200 | 1140 | 290 | 130 | |||
GZY 1020 | 250 | 310 | 460 | Y132M | 4 | 2000 | 1000 | 280 | 1500 | 433 | 127 | |
GZY 1220 | 340 | 480 | 650 | 2000 | 1200 | 280 | 1500 | 433 | 127 | |||
GZY 1525 | 420 | 550 | 850 | 2500 | 1500 | 280 | 2000 | 433 | 127 | |||
GZY 1225 | 460 | 810 | 1100 | Y160M | 7.5 | 2500 | 1200 | 328 | 2000 | 433 | 127 | |
GZY 1530 | 550 | 850 | 1200 | 3000 | 1500 | 328 | 2513 | 420 | 127 | |||
GZY 1830 | 560 | 860 | 1300 | 3000 | 1800 | 328 | 2513 | 420 | 127 | |||
GZY 2025 | 600 | 950 | 1500 | 2500 | 2000 | 280 | 1980 | 443 | 137 | |||
GZY 2225 | 700 | 1000 | 1650 | 2500 | 2200 | 280 | 1980 | 443 | 137 | |||
GZY 2525 | 820 | 1150 | 1800 | 2500 | 2500 | 280 | 1980 | 443 | 137 | |||
GZY 2830 | 950 | 1300 | 2200 | Y160L | 11 | 3000 | 2800 | 300 | 2500 | 433 | 137 | |
GZY 3030 | 1000 | 1600 | 2500 | 3000 | 3000 | 300 | 2500 | 433 | 127 | |||
注:GZY產品已用于鞍鋼新1#、2#、3#高爐。
型號 | 主要尺寸mm | ||||||||||||
G | H | J | K | L | M | N | Q | W | R | S | T | P | |
GZY 0510 | 700 | 620 | 580 | 330 | 222 | 450 | 240 | 600 | 360 | 290 | 82 | 280 | 280 |
GZY 0815 |
| 910 | 610 |
| 222 | 538 | 260 | 692 | 455 |
|
| 280 | 280 |
GZY 1015 |
| 1110 | 610 |
| 222 | 538 | 260 | 692 | 455 |
|
| 280 | 280 |
GZY 1020 | 1362 | 1206 | 700 | 599 | 212 | 700 | 280 | 820 | 520 | 550 | 150 | 332 | 400 |
GZY 1220 | 1562 | 1406 | 700 | 599 | 212 | 700 | 280 | 820 | 520 | 550 | 150 | 332 | 400 |
GZY 1525 | 1862 | 1706 | 700 | 599 | 212 | 700 | 280 | 944 | 520 | 550 | 150 | 332 | 400 |
GZY 1225 | 1562 | 1406 | 863 | 635 | 240 | 761 | 320 | 820 | 585 | 550 | 150 | 350 | 420 |
GZY 1530 | 1880 | 1724 | 913 | 646 | 240 | 761 | 320 | 944 | 585 | 550 | 150 | 350 | 420 |
GZY 1830 | 2189 | 2024 | 913 | 646 | 240 | 761 | 320 | 944 | 585 | 550 | 150 | 350 | 420 |
GZY 2025 | 2384 | 2240 | 745 | 561 | 240 | 771 | 320 | 1004 | 585 | 550 | 150 | 350 | 420 |
GZY 2225 | 2584 | 2440 | 745 | 561 | 240 | 771 | 320 | 1004 | 645 | 550 | 150 | 350 | 420 |
GZY 2525 | 2884 | 2740 | 745 |
| 240 | 771 | 320 | 1004 | 645 | 550 | 150 | 350 | 420 |
GZY 2830 | 3188 | 3044 | 810 | 578 | 240 | 761 | 320 | 1051 | 670 | 550 | 150 | 350 | 420 |
GZY 3030 | 3384 | 3244 | 810 | 578 | 240 | 761 | 320 | 1051 | 670 | 550 | 150 | 350 | 420 |
五、安裝和試運轉
閘門與給料機槽體之間的間隙不得小于50mm,不允許料倉中的物料直接壓在給料饑的槽體上。
座式安裝時,安裝給料機底架的地面應平整。底架安放平整后,將支承彈簧放在彈簧支座上,使彈簧的內孔對準彈簧支座上的凸臺、再將給料槽安放在彈簧上,給料槽應橫向水平,每端左右兩側的支座高度應相同,誤差不得超過3mm。所有彈簧必須處于垂直狀態。如有扭斜,應調整彈簧下面支座的位置??梢杂眉訅|片的方法調整給料槽的傾角和橫向水平度。
給料槽和上部密封罩,側面支架等不參振物體間的距離應大于50mm。
電動機軸線應對準振動器的傳動軸。
安裝完畢,用手轉動彈性聯軸器,如發現有阻力過大或卡死現象,應找出原因加以調整。試車時,先短時運轉,沒有問題后連續運轉4—6小時,給料槽振動應平穩,不得有橫向擺動和不正常聲響,連續運轉4—6小時后,檢查軸承溫度不得超過75℃。
六、使用和維護
操作人員應在停機狀態下檢查給料機的料槽,支承彈簧,振動器,彈性聯軸器等各部分是否正常。
必須在接受給料機物料的設備已經開動后才能起動給料機。
在給料機正常運轉過程中應經常檢查軸承溫度、支承彈簧等是否正常,各處的連接螺栓是否松動(特別是振動器的固定螺栓),如發現松動應及時擰緊。
振動器的軸承和齒輪采用30號以下機械油油池和飛濺潤滑。振動器上裝有油標,注意不要使油面超過油標上的油面線,也不要使油面低于油面線5mm以下。在規定的潤滑期內,要使用同一牌號的潤滑油、不同牌號的潤滑油混用,將加快齒輪和軸承的磨損。更換潤滑油牌號時,不能降低油的性能指標,必須用新牌號油將齒輪箱涮洗干凈后才能換油。一般工作1000小時換一次油,但不要超過3個月。換油時要注意保持齒輪箱的清潔,不能將任何雜物和粉塵落人齒輪箱內。
每年應檢查一次電動機軸承,并添加潤滑油脂。
蘇公網安備 32062102000309號