垂直振動輸送機是一種新型的垂直振動輸送設備,是把不同樓層間的輸送機系統連接成一個更大的連續的輸送機系統的重要設備。
垂直振動輸送機廣泛應用于礦山、冶金、機械、建材、化工、橡膠、醫藥、電力、糧食、食品等行業的塊狀、粉狀和短纖維狀固體物料的提升,垂直振動輸送機在向上提升物料的同時,還可以完成對物料的 干燥和冷卻。分開槽式、封閉式兩種結構,并可根據不同的工藝要求,設計物料顆粒分級作用的篩選提升機及設計易燃易爆物料的提升機。

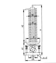
外形尺寸:


江蘇信發振動機械有限公司
垂直振動輸送機是一種新型的垂直振動輸送設備,是把不同樓層間的輸送機系統連接成一個更大的連續的輸送機系統的重要設備。
垂直振動輸送機廣泛應用于礦山、冶金、機械、建材、化工、橡膠、醫藥、電力、糧食、食品等行業的塊狀、粉狀和短纖維狀固體物料的提升,垂直振動輸送機在向上提升物料的同時,還可以完成對物料的 干燥和冷卻。分開槽式、封閉式兩種結構,并可根據不同的工藝要求,設計物料顆粒分級作用的篩選提升機及設計易燃易爆物料的提升機。

外形尺寸:


? 2024 江蘇信發振動機械有限公司 備案號:蘇ICP備12071433號-1
蘇公網安備 32062102000309號
技術支持:天正企劃